[2021] 청주 서원청소년 문화의집 설계공모 _ 4등
2025. 7. 14. 11:31ㆍPROJECT
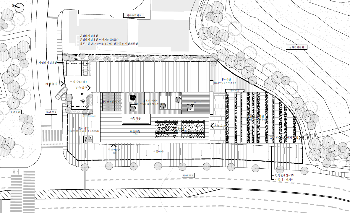
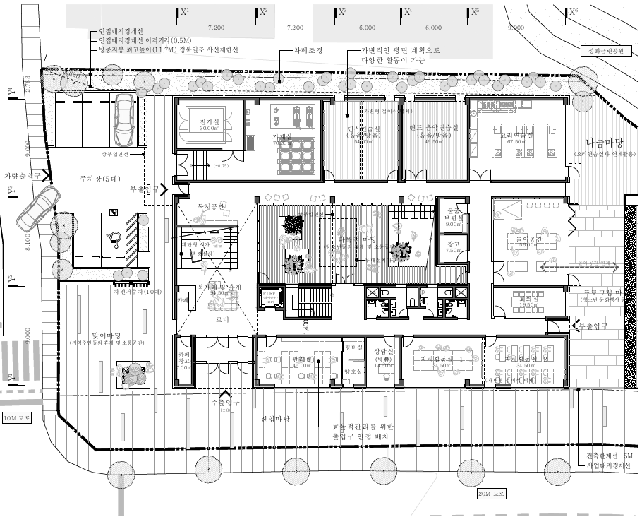
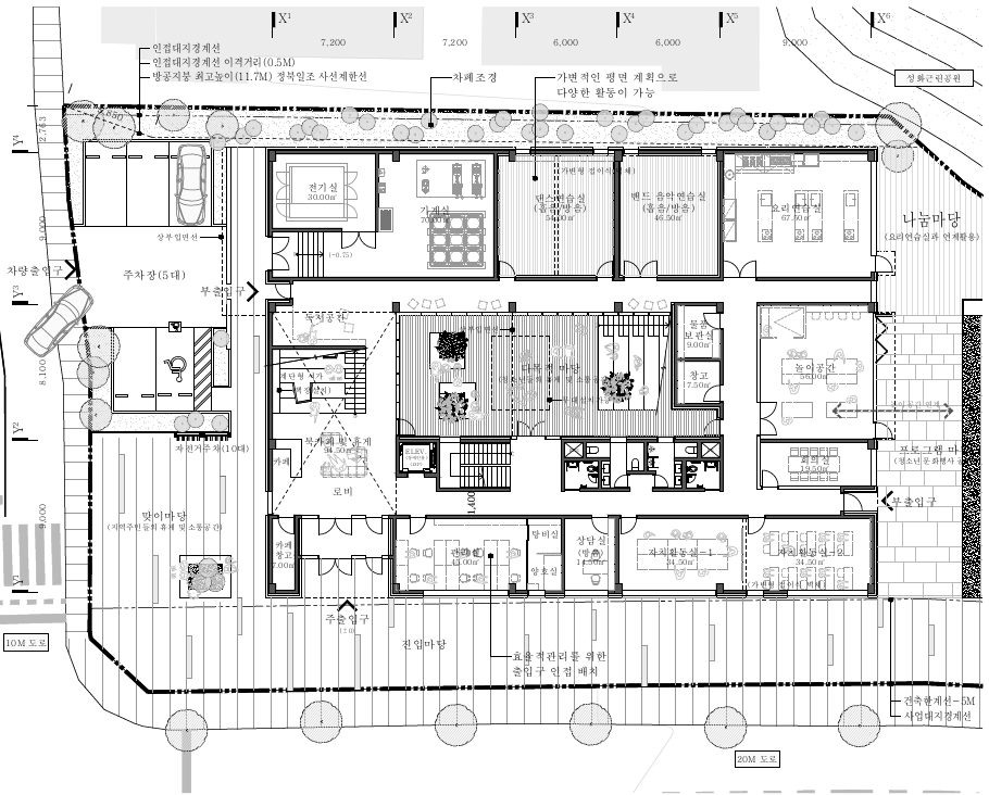
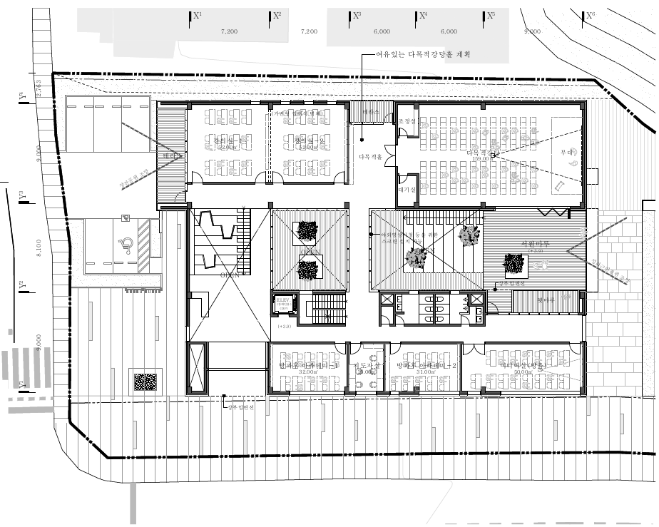
지역사회와 함께하는 청소년 문화의 중심 시설
놀이시설과 같은 즐거운 공간.
잠시 쉬어 갈 수 있는 편안한 공간.
집과 같은 따듯한 공간.
의미없이 들릴 수 있는 공간이 되길 바랬다.
Year : 2021
Program : 수련시설(청소년 수련시설)
Area : 1,333㎡ (리모델링 6,216㎡ + 증축 220㎡)
Client : 청주시
Location : 청주시 서원구 성화동 627번지
Architect : 구축공간 건축사사무소






'PROJECT' 카테고리의 다른 글
| [2021] 청주 율량 공영주차타워 _ 3등 (0) | 2025.10.24 |
|---|---|
| [2021] 청주 흥덕구 보건소 설계공모 _ 당선작 (0) | 2025.06.08 |
| [2020] 서울 통일문화센터 _ 참여작 (0) | 2025.06.07 |
| [2020] 서울 청계 하수 역사체험관 _ 참여작 (0) | 2025.06.05 |