[2020] 서울 청계 하수 역사체험관 _ 참여작
2025. 6. 5. 18:22ㆍPROJECT
빛과 물, 폐허의 시
사람을 통과한 물이 모여
새로운 탄생을 꿈꾸던 장소
물의 흔적이 새겨진
깊은 땅 속 공간
정직하게 낡아진 곳
태생부터 겸손한
시간과 함께 깊어진
새로운 꿈이 되는 이 곳
빛과 물
순환하는 시간성을 드러내며
신의 손길로 공간을 연주하고
흐르고 침전하고 여과되고
다시 흐르기를 끊임없이
뜨고 가라앉고
어김없이 뜨기를 끊임없이
폐허에 울리는 시.
Year : 2020
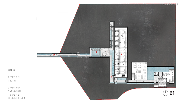
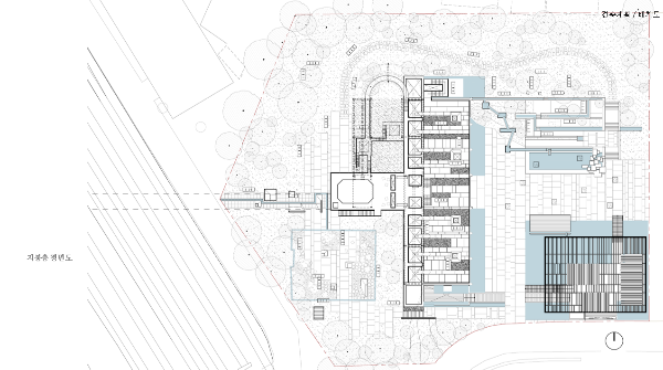
Program : 전시시설
Area : 17,000㎡ (사업면적 5,500㎡+마스터플랜 제안 11,500㎡)
Client : 서울특별시
Location : 서울시 성동구 중랑물재생센터
Architect : 교수 심규영(+LAP연구실) + 구축공간 건축사사무소



















'PROJECT' 카테고리의 다른 글
| [2021] 청주 율량 공영주차타워 _ 3등 (0) | 2025.10.24 |
|---|---|
| [2021] 청주 서원청소년 문화의집 설계공모 _ 4등 (0) | 2025.07.14 |
| [2021] 청주 흥덕구 보건소 설계공모 _ 당선작 (0) | 2025.06.08 |
| [2020] 서울 통일문화센터 _ 참여작 (0) | 2025.06.07 |