[2020] 서울 통일문화센터 _ 참여작
2025. 6. 7. 16:57ㆍPROJECT
담(談)
모두의 바람이 이루어지길.
그 시작이 되길.
바람이 분다.
[2020] 서울 통일문화센터 _ 참여작
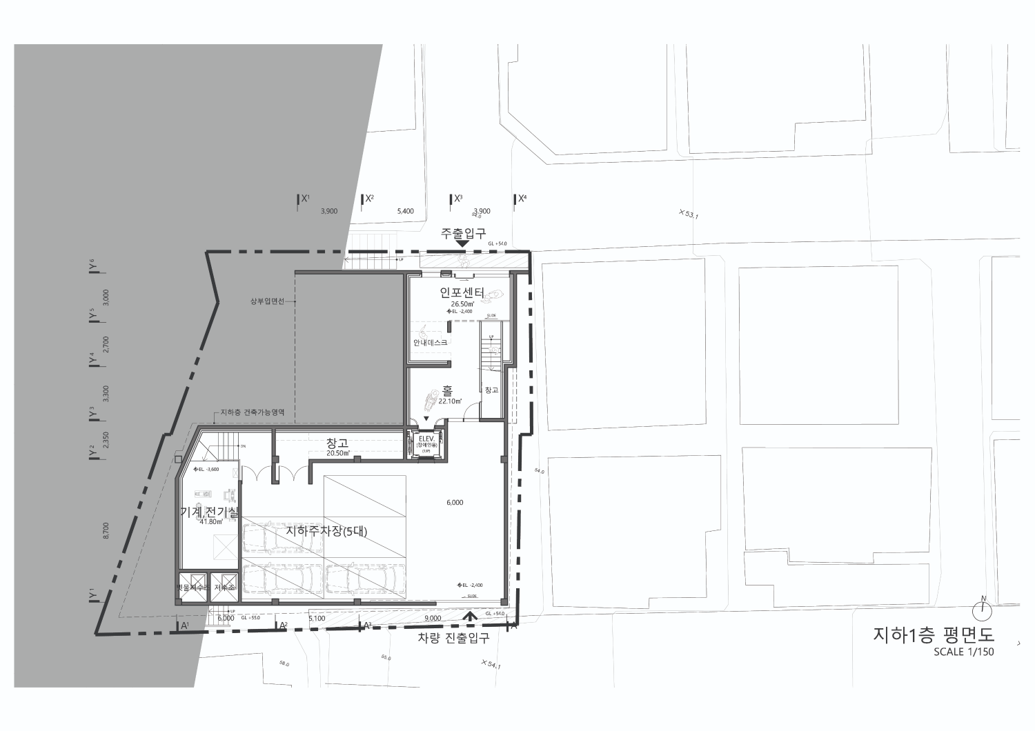
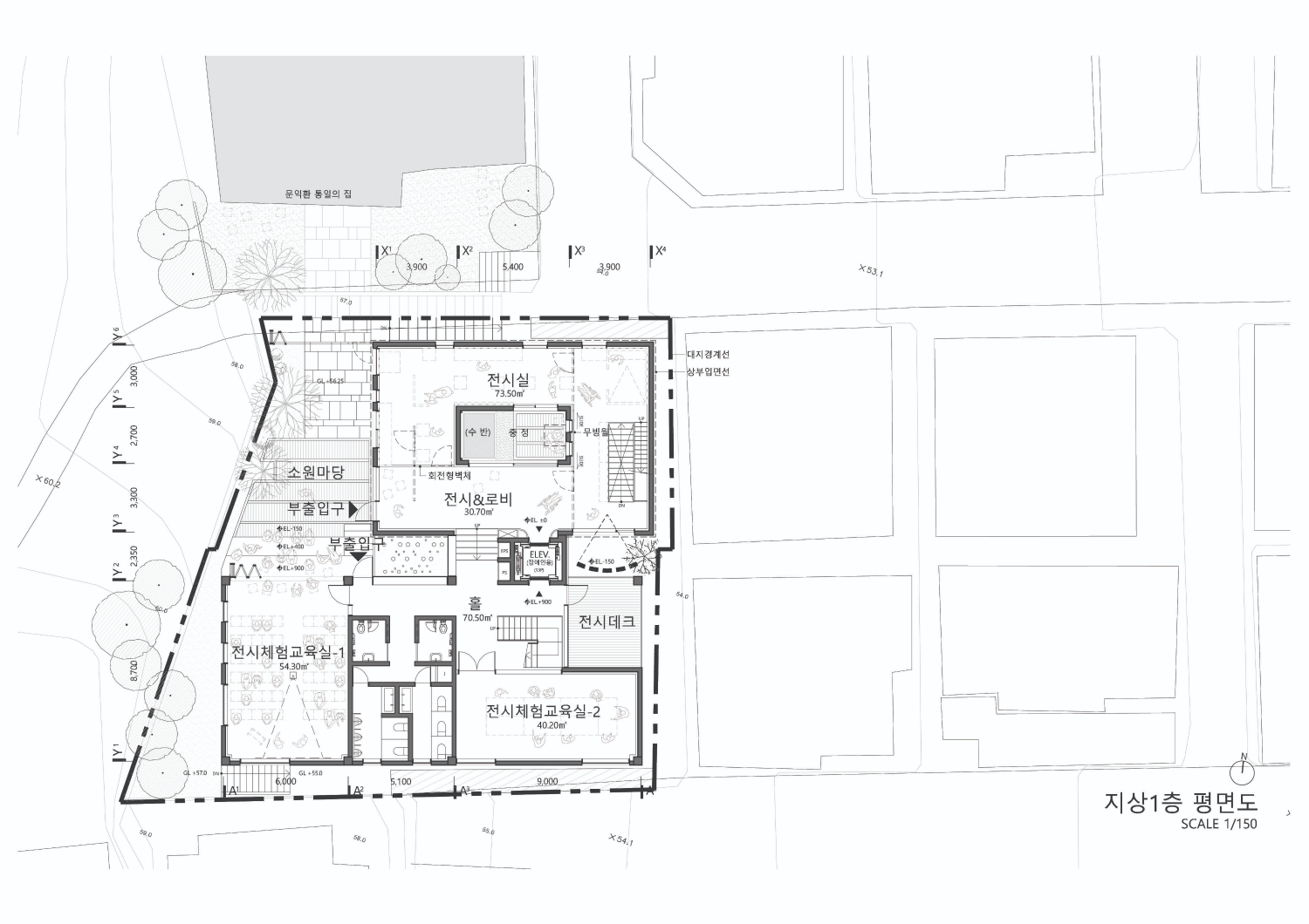
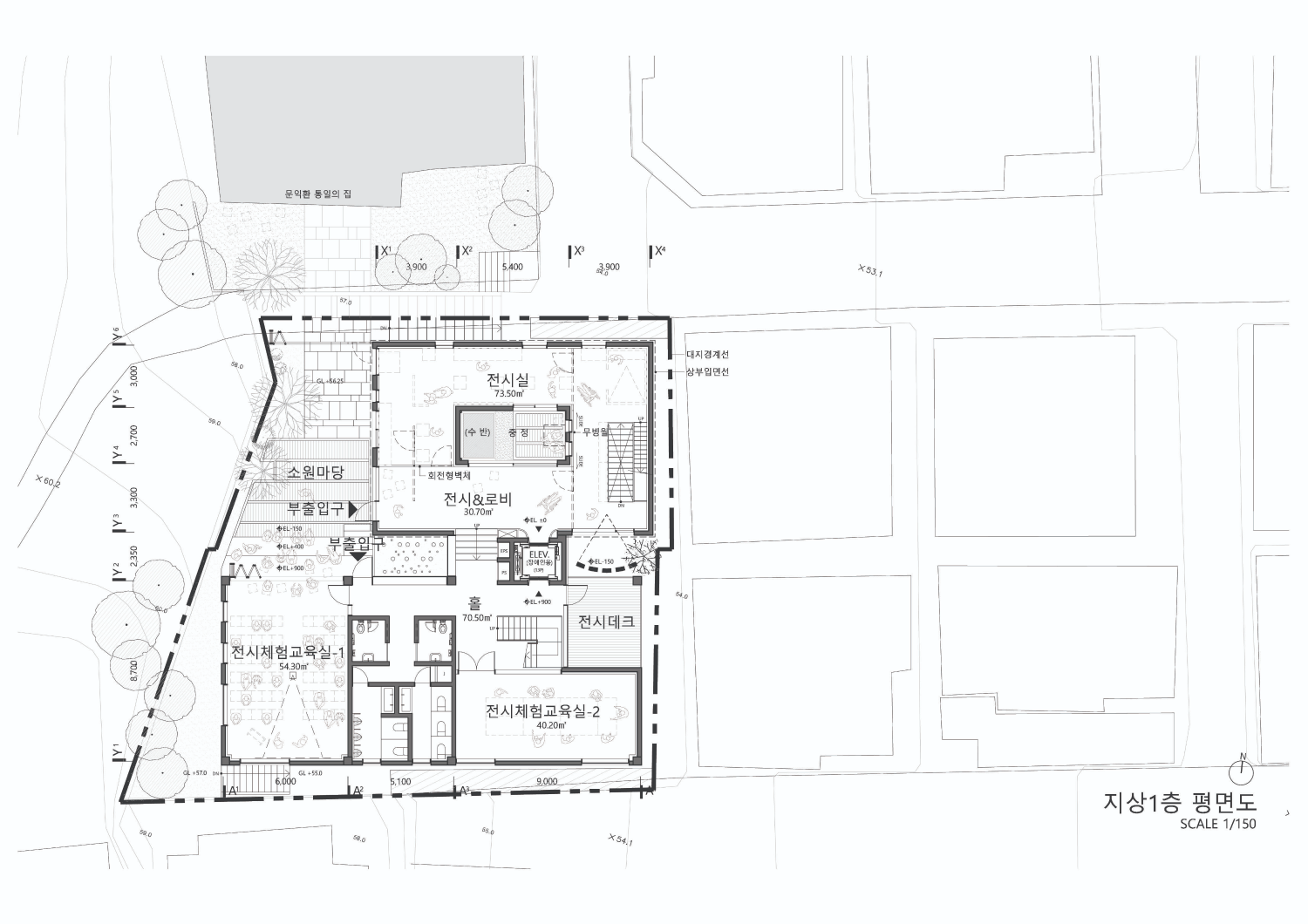
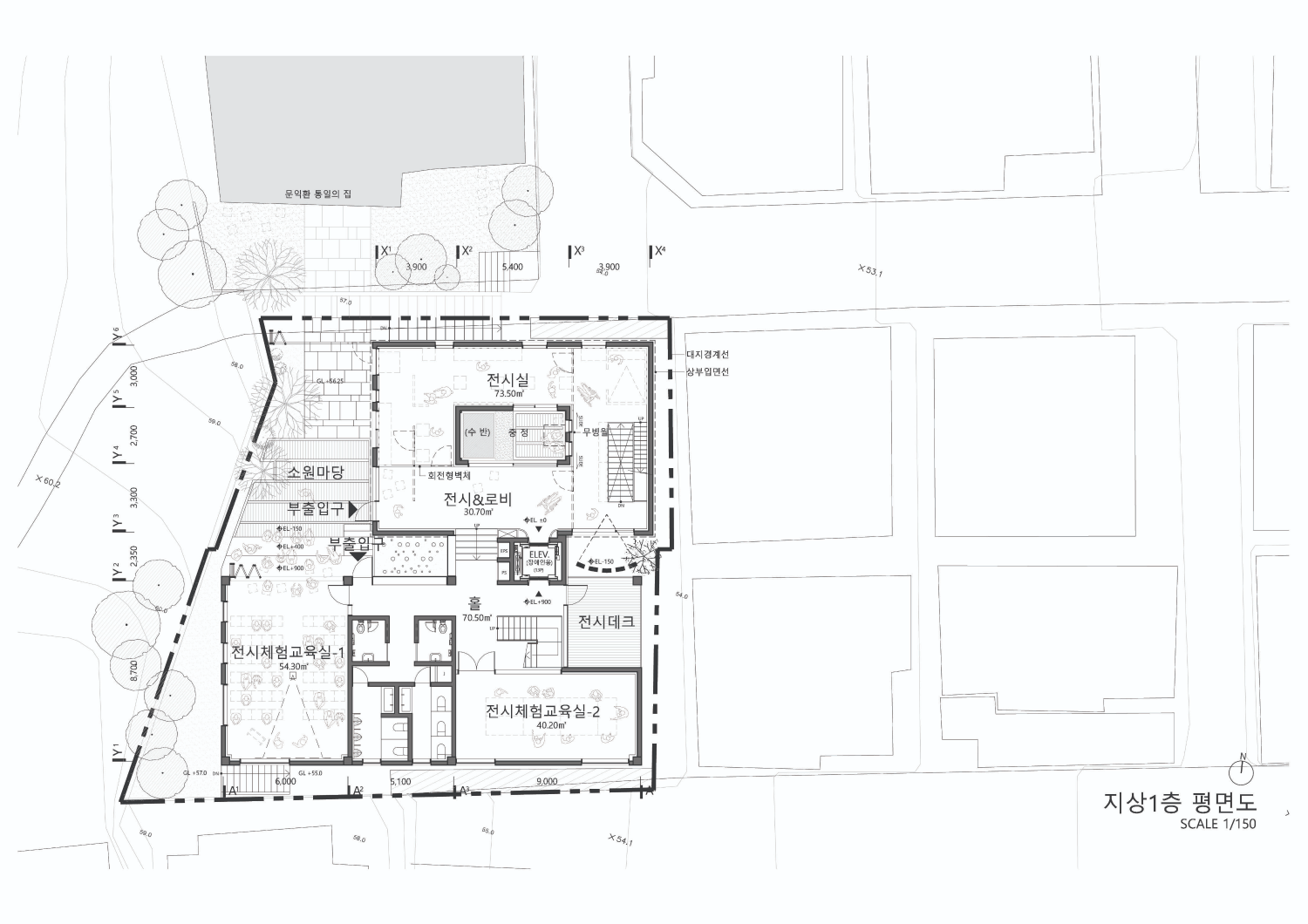
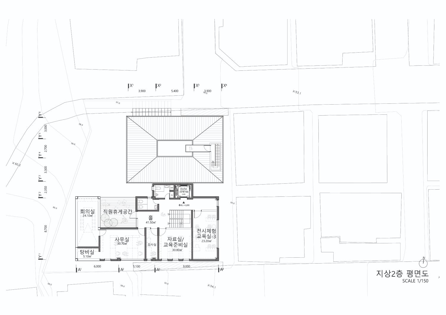
Year : 2020
Program : 문화 및 집회시설
Area : 680㎡
Client : 서울특별시
Location : 서울시 강북구 인수봉로 251-9 일원
Architect : 구축공간 건축사사무소



[ 투시도-1 ]







'PROJECT' 카테고리의 다른 글
| [2021] 청주 율량 공영주차타워 _ 3등 (0) | 2025.10.24 |
|---|---|
| [2021] 청주 서원청소년 문화의집 설계공모 _ 4등 (0) | 2025.07.14 |
| [2021] 청주 흥덕구 보건소 설계공모 _ 당선작 (0) | 2025.06.08 |
| [2020] 서울 청계 하수 역사체험관 _ 참여작 (0) | 2025.06.05 |