[2021] 청주 율량 공영주차타워 _ 3등
2025. 10. 24. 10:40ㆍPROJECT
주변 공간의 재구축
목적에만 부합하는 시설이기보다,
주변 일대에 변화의 바람을 일으킬 수 있는 시설.
Year : 2021
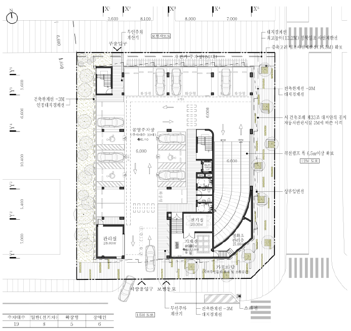
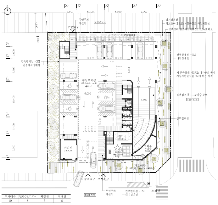
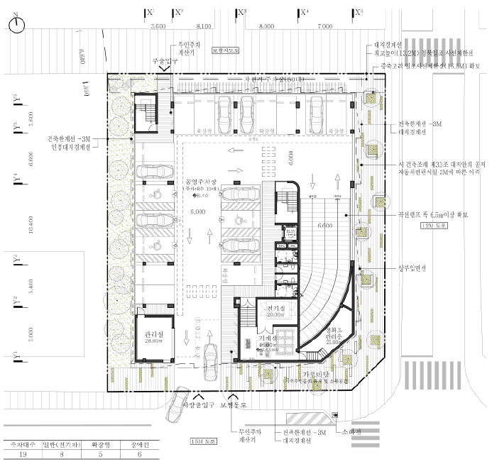
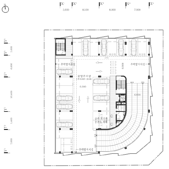
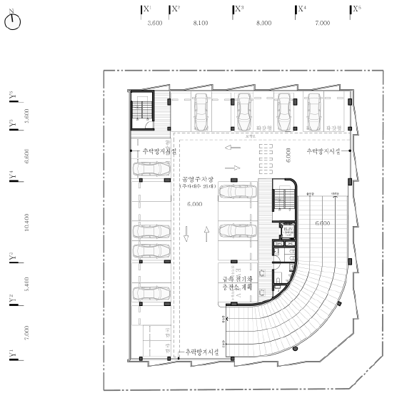
Program : 주차시설
Area : 4,151.50㎡
Client : 청주시
Location : 청주시 청원구 율량동 2177번지
Architect : 구축공간 건축사사무소







'PROJECT' 카테고리의 다른 글
| [2021] 청주 서원청소년 문화의집 설계공모 _ 4등 (0) | 2025.07.14 |
|---|---|
| [2021] 청주 흥덕구 보건소 설계공모 _ 당선작 (0) | 2025.06.08 |
| [2020] 서울 통일문화센터 _ 참여작 (0) | 2025.06.07 |
| [2020] 서울 청계 하수 역사체험관 _ 참여작 (0) | 2025.06.05 |