[2021] 청주 흥덕구 보건소 설계공모 _ 당선작
2025. 6. 8. 14:26ㆍPROJECT
REMODELING ≠ RE+INNOVATION
코로나. 공공복지와 질병예방이라는 가치를 일깨워주던 시기.
모두를 위한,
단순한 리모델링이 아닌,
새로운 정체성 부여를 통한 공간과 장소가 필요하다.
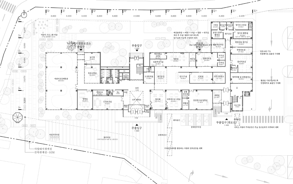
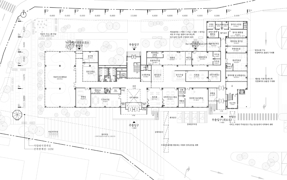
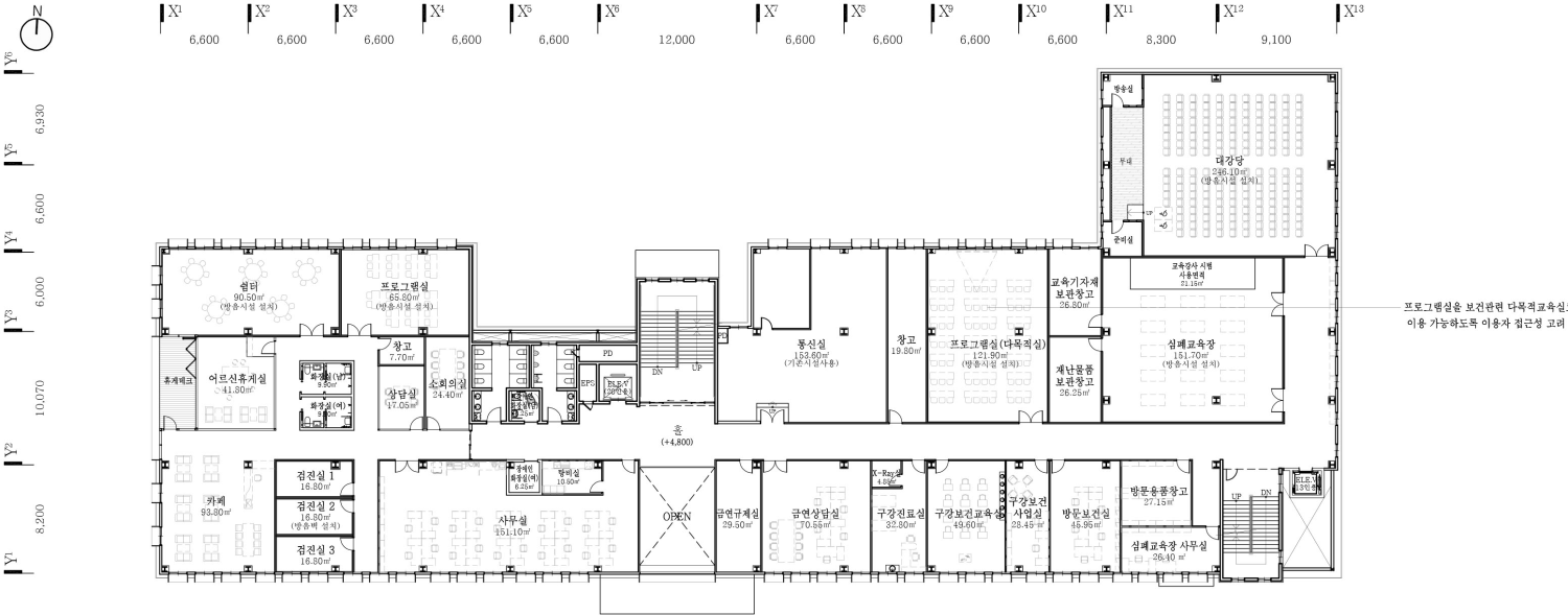
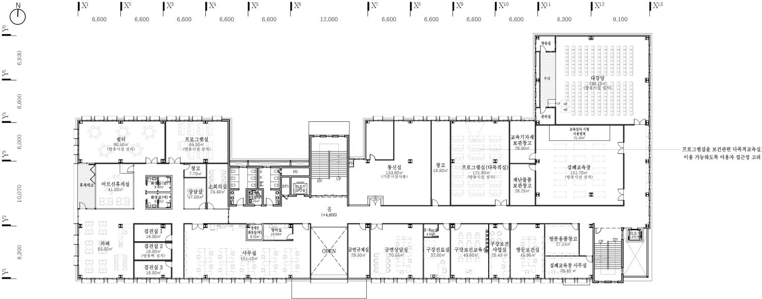
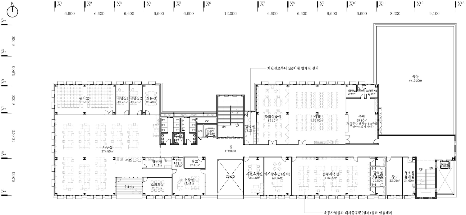
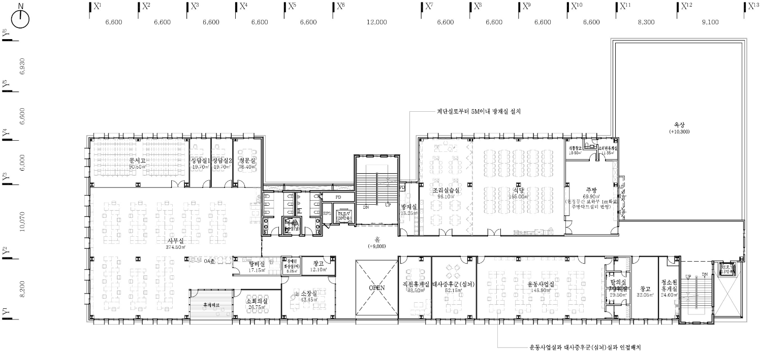
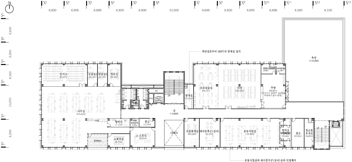
공간 재구축을 통한 새로운 정체성 부여 및 열린 보건소 계획.
Year : 2021
Program : 공공업무시설(보건소)
Area : 6,436㎡ (리모델링 6,216㎡ + 증축 220㎡)
Client : 청주시 흥덕보건소
Location : 청주시 흥덕구 대농로 88( 일원
Architect : 구축공간 건축사사무소







'PROJECT' 카테고리의 다른 글
| [2021] 청주 율량 공영주차타워 _ 3등 (0) | 2025.10.24 |
|---|---|
| [2021] 청주 서원청소년 문화의집 설계공모 _ 4등 (0) | 2025.07.14 |
| [2020] 서울 통일문화센터 _ 참여작 (0) | 2025.06.07 |
| [2020] 서울 청계 하수 역사체험관 _ 참여작 (0) | 2025.06.05 |